Время резерва, час
72 (деж.)/2 (трансл)
Выходное напряжение, В
120
Количество зон
1
Дисплей
ЖК
Количество каналов управления
1
Реле выходы
1 (НО и НЗ)+1 (ОК)
Номинальная мощность,Вт
150
Частотный диапазон,Гц
16 - 32000
Подключение
2-х проводное
Максимально комутируемые напряжение/ток, В/А
240/7
Рекомендуемый АКБ, А*ч
2х4,5
Количество линейных входов
3 (1 микр.+2 лин.)
Тревожные входы/выходы
4 пож.ШС/2-свет табло, сирена
Количество светодиодов, шт.
8
Карта памяти
SD/SDHC/SDSC/MMC (до 32 Гб)
Возможности расширения
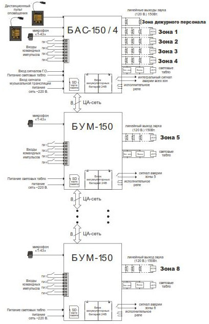
До 62 БУМ-150 или 15 БУМ-150/4
Тип изделия
Дополнительный блок усилителя мощности
Контроль линии оповещения
Есть
Суммарная длительность речевых сообщений, с
Зависит от карты
Максимальное количество речевых сообщений в памяти устройства
Не менее 8
Индикация
Световая и звуковая
Напряжение питания, В
198 - 253; 20 - 28
Потребляемая мощность, Вт
130
Разъем
RJ45, клеммы
Диапазон рабочих температур, °С
-5...+45
Степень защиты, IP
20
Габаритные размеры, мм
405х305х125
Масса, кг
10
БУМ-150
Артикул: 82075
155490 р./шт.
(с НДС)
0 р.
| Количество | Ваша цена | Экономия |
|---|---|---|
| Опт от 1 шт. | 139 941 р./шт. | 15 549 р. |
| Запросить КП на крупный опт |
Дополнительный блок усилителя мощности системы РЕЧОР-М для устройства БАС-150. Мощность 150Вт, резервный аккумулятор.
Характеристики:
Производитель:
РУССБЫТ
Описание:
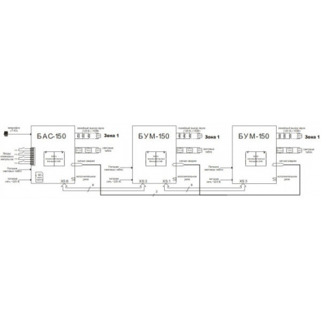
БУМ-150 - дополнительный блок усиления мощности для устройства БАС-150 или БАС-150/4 системы РЕЧОР-М, 1-зонный с усилителем звука и мощностью 150 Вт относится к ППУ (пожарный прибор управления) с совмещением ряда функций ППКП (прибор приемно-контрольный пожарный).
Данный блок предназначен для построения на его основе СОУЭ 3-его типа (система оповещения и управления эвакуацией), либо составной части СОУЭ.
Устройство может работать как автономно, так и в составе комплекса аппаратных средств "Речор-М", реализованного на базе цифро-аналоговой сети.
Блок имеет до 4 программируемых сообщений, встроенный аккумулятор.
В конце 1-ой трансляционной линии оповещения устанавливается согласующая нагрузка (КН-М).
Техническая документация
- -М (БУМ-150 и 150-4) - блоки усил мощн дек 2018г
- -М (система реч оповещ и трансл)
- -М (БАС-150 и 150-4) - блоки автоматич сообщ дек 2018г
- -М (Инстр по уст и работе прогр конфиг)
Сертификаты
Ввиду того, что изделие может быть модифицировано, сведения, представленные на данной странице (изображение, характеристики, документация и т.п.), могут отличаться от фактических особенностей товара. За дополнительной информацией обращайтесь в техническую поддержку.
Каталог товаров
-
Охранно-пожарная сигнализация
-
Адресные системы
-
Радиоканальные системы
-
Астра-Р (ТЕКО)
-
Астра-РИ (ТЕКО)
-
Астра-РИ-М (ТЕКО)
-
Астра-Прайм (ТЕКО)
-
Астра-Zитадель (ТЕКО)
-
Ладога-РК (Риэлта)
-
С2000Р (Болид)
-
ВЕКТОР-АР (Сибирский Арсенал)
-
ВЕТТА-2020 (Сибирский Арсенал)
-
ГРАНИТ-РК (Сибирский Арсенал)
-
Риф-Ринг-1 (Альтоника)
-
Риф-Ринг-2 (Альтоника)
-
Риф-Ринг-701 (Альтоника)
-
Риф-Ринг-200 (Альтоника)
-
Lonta Optima (Альтоника)
-
Lonta-202 (Альтоника)
-
ACS (GSN)
-
-
GSM системы
-
Приборы приемно-контрольные
-
Извещатели охранные для помещений
-
Извещатели магнитоконтактные
-
Извещатели тревожной сигнализации
-
Извещатели разбития стекла акустические
-
Извещатели разбития стекла ударноконтактные
-
Извещатели движения ультразвуковые
-
Извещатели движения инфракрасные объемные
-
Извещатели движения пассивные инфракрасные поверхностные (штора)
-
Извещатели движения пассивные инфракрасные линейные (коридор)
-
Извещатели движения пассивные инфракрасные потолочные
-
Извещатели движения комбинированные
-
Извещатели совмещенные
-
Извещатели вибрационные и емкостные
-
-
Извещатели охраны периметра
-
Извещатели охраны периметра линейные ИК-активные
-
Извещатели охраны периметра линейные радиоволновые для установки на открытых участках
-
Извещатели охраны периметра ИК-пассивные
-
Извещатели охраны периметра объемные радиоволновые
-
Извещатели охраны периметра комбинированные
-
Извещатели охраны периметра проводно-волновые
-
Извещатели охраны периметра вибрационные
-
-
Извещатели пожарные
-
Извещатели дымовые 2-х проводные
-
Извещатели дымовые 4-х проводные
-
Извещатели дымовые автономные
-
Извещатели дымовые линейные
-
Извещатели дымовые аспирационные
-
Извещатели тепловые максимальные (пороговые)
-
Извещатели тепловые максимально-дифференциальные
-
Извещатели линейные тепловые пожарные
-
Извещатели пламени
-
Извещатели ручные
-
Извещатели комбинированные
-
-
Извещатели аварийные
-
Оповещатели
-
Светильники и аварийное освещение
-
Системы активной защиты
-
Распродажа
-
-
Системы охранного телевидения
-
Системы контроля и управления доступом
-
Домофоны
-
IP-домофония
-
Идентификаторы
-
Кнопки выхода
-
Считыватели
-
Кодовые панели
-
Автономные устройства контроля доступа
-
Сетевые системы контроля доступа
-
Биометрический контроль доступа
-
Системы обратной и диспетчерской связи
-
Замки
-
Электрозащелки
-
Доводчики
-
Турникеты
-
Калитки
-
Ограждения
-
Шлагбаумы
-
Автоматика для ворот
-
Досмотровое оборудование
-
-
Системы оповещения
и управление эвакуацией-
СОУЭ Тромбон
-
СОУЭ Ария (Электротехника и Автоматика)
-
СОУЭ Соната (ВИСТЛ)
-
СОУЭ С (ИП Раченков)
-
СОУЭ МЕТА
-
СОУЭ Октава (Полисервис)
-
СОУЭ Рокот (Сибирский Арсенал)
-
СОУЭ РЕЧОР (РУССБЫТ)
-
СОУЭ РЕЧОР-АТ (АНТИТЕРРОР) (РУССБЫТ)
-
СОУЭ ПКИ-Р (СпецКомИнтегРо)
-
Системы оповещения о пожаре Asenware
-
СОУЭ ROXTON
-
Звуковое оборудование RORSYS
-
СОУЭ JDM
-
СОУЭ MKV
-
СОУЭ ZVON
-
СОУЭ INTER-М
-
-
Взрывозащищенное оборудование
-
Извещатели пожарные взрывозащищенные
-
Извещатели пожарные тепловые резервуарные
-
Извещатели пожарные тепловые точечные
-
Извещатели пожарные тепловые максимально-дифференциальные
-
Извещатели пожарные дымовые
-
Извещатели пожарные комбинированные
-
Извещатели пожарные ручные взрывозащищенные
-
Извещатели пожарные пламени взрывозащищенные
-
Комплектующие к пожарным извещателям
-
-
Извещатели пожарные линейные взрывозащищенные
-
Извещатели охранные взрывозащищенные
-
Извещатели аварийные взрывозащищенные
-
Оповещатели взрывозащищенные
-
Табло оповещения взрывозащищённое
-
Приборы приемно-контрольные и пульты управления взрывозащищенные
-
Адресные взрывозащищенные системы
-
Посты управления взрывозащищенные
-
Системы видеонаблюдения взрывозащищенные
-
Системы контроля доступа взрывозащищенные
-
Громкоговорители взрывозащищенные
-
Коробки коммутационные взрывозащищенные
-
Барьеры искрозащиты
-
Кабельные вводы взрывозащищенные
-
-
Источники вторичного электропитания
-
Расходные и монтажные материалы
-
Средства пожаротушения
-
Первичные средства пожаротушения
-
Порошковое пожаротушение
-
Водяное пожаротушение
-
Аэрозольное пожаротушение
-
Газовое пожаротушение
-
Автономные установки пожаротушения
-
Клапан сброса избыточного давления КСИД
-
Водопенное оборудование
-
Шкафы пожарные
-
Дымоудаление
-
Средства защиты и спасения
-
Знаки безопасности и плакаты
-
-
Сетевое оборудование