Количество абонентов
100
Разрешение
0,3 Мп (640x480)=380 ТВЛ
Дальность ИК-подсветки, м, до
0,5
Угол обзора,град.
90
Чувствительность, лк
0 (ИК)
Встроенная камера
Да
Количество светодиодов, шт.
1
Реле выходы
1 (НО и НЗ)
Количество клавиш управления
12
Подключение
12-и проводное
Максимально комутируемые напряжение/ток, В/А
12/1
Максимальное количество ключей
600
Встроенный считыватель
Em-Marine
Система
PAL
Рекомендованный кабель
RG-59/RG-6
Тип считывателя (без считывателя-о ключи ТМ-тм карты-к)
VIZIT-RF2.x (125 кГц)
День/Ночь
Авто
Тип изделия
Блок вызова
Цвет
Бронза
Встроенная ИК подсветка
Да
Материал
Металл
Тип установки
Накладной
Индикация
Световая и звуковая
Напряжение питания, В
18 - 26
Ток потребления. мА
300
Потребляемая мощность, Вт
6,6
Диапазон рабочих температур, °С
-30...+45
Степень защиты, IP
54
Габаритные размеры, мм
170х86х25
Масса, кг
0,5
БВД-SM101RCPL
Данный товар находится в архиве!
Возможность поставки уточняйте у менеджера!!
БВД-SM101RCPL - блок вызова домофона до 100 абонентов используется совместно с блоком питания БПД18/12-1-1 в составе многоквартирных домофонов VIZIT.
Рекомендуется применять электромагнитные замки VIZIT-МL240, VIZIT-МL300, VIZIT-МL400 или электромеханические замки с сопротивлением обмотки не менее 20 Ом.
Запрещается использовать электромагнитные замки с сопротивлением обмотки менее 20 Ом, а также не имеющие цепей размагничивания.
Для выхода из помещения (при использовании электромагнитного замка) рекомендуется использовать кнопки ЕХIT 300М, EXIT 500, имеющие цепи аварийного управления электромагнитным замком.
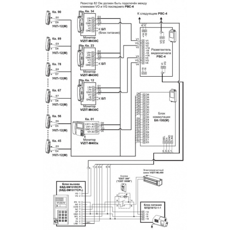
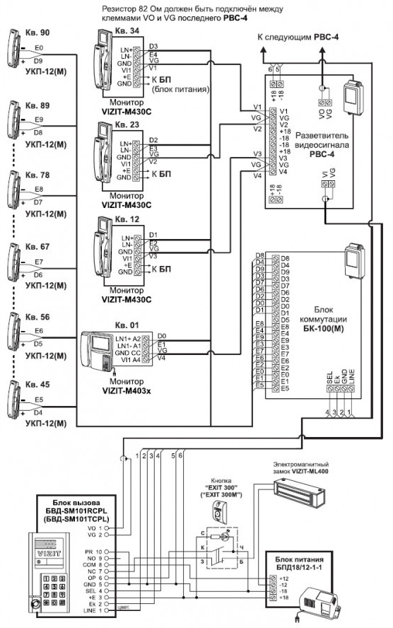
Для подключения абонентских устройств VIZIT к подъездной линии домофона применяются блоки коммутации.
Для подключения УКП возможно применение блоков коммутации БК-4(М), БК-10, БК-30(М), БК-100(М).
Для подключения мониторов VIZIT совместно с перечисленными блоками коммутации можно использовать разветвитель видеосигнала РВС-4 или использовать блоки коммутации со встроенным разветвителем видеосигнала БК-4МV.
Возможно комбинированное использование разных типов блоков коммутации.
Для установки блока и дополнительной защиты от климатических воздействий рекомендуется использовать монтажный комплект МК-341 (козырек).
Особенности:
- дуплексная громкоговорящая связь;
- память на 600 ключей VIZIT-RF2.x;
- количество ключей на один номер квартиры - 6;
- возможность выключения вызова отдельных квартир;
- работа с пультом консьержа VIZIT;
- визуальный контроль обстановки перед блоком вызова;
- встроенная телекамера цветного изображения с функцией "День-ночь" (PAL, 0 Lux, 700 tvl, объектив PINHOLE 90°);
- ИК - подсветка для телекамеры;
- 4-х разрядный светодиодный индикатор;
- программируемая продолжительность открывания замка - от 1 до 20 секунд;
- открывание замка входной двери:
- при нажатии кнопки открывания замка на устройстве квартирном переговорном УКП или мониторе во время связи;
- при наборе 4-х значного общего кода;
- при наборе 3-х значного индивидуального кода;
- при нажатии кнопки для выхода;
- ключами VIZIT-RF. - напряжение питания, В: 18 - 26;
- потребляемый ток, А, не более: 0,3;
- габаритные размеры, мм, (ВхШхГ) - 170х86х25;
- вариант установки - накладной;
- диапазон рабочих температур, °С - от - 30 до + 45.
Совместимые устройства:
- Модификации кнопок управления выходом EXIT: EXIT 300M.
- Комплект монтажный MK-341.
- Комплект монтажный MP-100.
- Модификации VIZIT-M404: VIZIT-M404C, VIZIT-M404CМ.
- VIZIT-M427C.
- Модификации VIZIT-M440: VIZIT-M440C, VIZIT-M440CM.
- Модификации VIZIT-ML240: VIZIT-ML240-40.
- Модификации VIZIT-ML300: VIZIT-ML300M-40, VIZIT-ML300M-50.
- Модификации VIZIT-ML400: VIZIT-ML400-40, VIZIT-ML400-50.
- VIZIT-TM.
- Модификации VIZIT-M456: VIZIT-М456C, VIZIT-М456CM.
- БК-10.
- Модификации БК-100: БК-100М.
- Модификации БК-30: БК-30М.
- Модификации БК-4: БК-4М, БК-4МV, БК-4МVE.
- Блок коммутации пульта консьержа БК-А418.
- Блок коммутации монитора БКМ-440: БКМ-440M.
- Блок коммутации монитора БКМ-441.
- Модификации БПД18/12: БПД18/12-1-1.
- Модификации БПД24/12: БПД24/12-1-1.
- РВС-2.
- РВС-4.
- Модификации УКП-12: УКП-12-1, УКП-12М.
- УКП-7.
Ввиду того, что изделие может быть модифицировано, сведения, представленные на данной странице (изображение, характеристики, документация и т.п.), могут отличаться от фактических особенностей товара. За дополнительной информацией обращайтесь в техническую поддержку.
-
Охранно-пожарная сигнализация
-
Адресные системы
-
Радиоканальные системы
-
Астра-Р (ТЕКО)
-
Астра-РИ (ТЕКО)
-
Астра-РИ-М (ТЕКО)
-
Астра-Прайм (ТЕКО)
-
Астра-Zитадель (ТЕКО)
-
Ладога-РК (Риэлта)
-
С2000Р (Болид)
-
ВЕКТОР-АР (Сибирский Арсенал)
-
ВЕТТА-2020 (Сибирский Арсенал)
-
ГРАНИТ-РК (Сибирский Арсенал)
-
Риф-Ринг-1 (Альтоника)
-
Риф-Ринг-2 (Альтоника)
-
Риф-Ринг-701 (Альтоника)
-
Риф-Ринг-200 (Альтоника)
-
Lonta Optima (Альтоника)
-
Lonta-202 (Альтоника)
-
ACS (GSN)
-
-
GSM системы
-
Приборы приемно-контрольные
-
Извещатели охранные для помещений
-
Извещатели магнитоконтактные
-
Извещатели тревожной сигнализации
-
Извещатели разбития стекла акустические
-
Извещатели разбития стекла ударноконтактные
-
Извещатели движения ультразвуковые
-
Извещатели движения инфракрасные объемные
-
Извещатели движения пассивные инфракрасные поверхностные (штора)
-
Извещатели движения пассивные инфракрасные линейные (коридор)
-
Извещатели движения пассивные инфракрасные потолочные
-
Извещатели движения комбинированные
-
Извещатели совмещенные
-
Извещатели вибрационные и емкостные
-
-
Извещатели охраны периметра
-
Извещатели охраны периметра линейные ИК-активные
-
Извещатели охраны периметра линейные радиоволновые для установки на открытых участках
-
Извещатели охраны периметра ИК-пассивные
-
Извещатели охраны периметра объемные радиоволновые
-
Извещатели охраны периметра комбинированные
-
Извещатели охраны периметра проводно-волновые
-
Извещатели охраны периметра вибрационные
-
-
Извещатели пожарные
-
Извещатели дымовые 2-х проводные
-
Извещатели дымовые 4-х проводные
-
Извещатели дымовые автономные
-
Извещатели дымовые линейные
-
Извещатели дымовые аспирационные
-
Извещатели тепловые максимальные (пороговые)
-
Извещатели тепловые максимально-дифференциальные
-
Извещатели линейные тепловые пожарные
-
Извещатели пламени
-
Извещатели ручные
-
Извещатели комбинированные
-
-
Извещатели аварийные
-
Оповещатели
-
Светильники и аварийное освещение
-
Системы активной защиты
-
Распродажа
-
-
Системы охранного телевидения
-
Системы контроля и управления доступом
-
Домофоны
-
IP-домофония
-
Идентификаторы
-
Кнопки выхода
-
Считыватели
-
Кодовые панели
-
Автономные устройства контроля доступа
-
Сетевые системы контроля доступа
-
Биометрический контроль доступа
-
Системы обратной и диспетчерской связи
-
Замки
-
Электрозащелки
-
Доводчики
-
Турникеты
-
Калитки
-
Ограждения
-
Шлагбаумы
-
Автоматика для ворот
-
Досмотровое оборудование
-
-
Системы оповещения
и управление эвакуацией-
СОУЭ Тромбон
-
СОУЭ Ария (Электротехника и Автоматика)
-
СОУЭ Соната (ВИСТЛ)
-
СОУЭ С (ИП Раченков)
-
СОУЭ МЕТА
-
СОУЭ Октава (Полисервис)
-
СОУЭ Рокот (Сибирский Арсенал)
-
СОУЭ РЕЧОР (РУССБЫТ)
-
СОУЭ РЕЧОР-АТ (АНТИТЕРРОР) (РУССБЫТ)
-
СОУЭ ПКИ-Р (СпецКомИнтегРо)
-
Системы оповещения о пожаре Asenware
-
СОУЭ ROXTON
-
Звуковое оборудование RORSYS
-
СОУЭ JDM
-
СОУЭ MKV
-
СОУЭ ZVON
-
СОУЭ INTER-М
-
-
Взрывозащищенное оборудование
-
Извещатели пожарные взрывозащищенные
-
Извещатели пожарные тепловые резервуарные
-
Извещатели пожарные тепловые точечные
-
Извещатели пожарные тепловые максимально-дифференциальные
-
Извещатели пожарные дымовые
-
Извещатели пожарные комбинированные
-
Извещатели пожарные ручные взрывозащищенные
-
Извещатели пожарные пламени взрывозащищенные
-
Комплектующие к пожарным извещателям
-
-
Извещатели пожарные линейные взрывозащищенные
-
Извещатели охранные взрывозащищенные
-
Извещатели аварийные взрывозащищенные
-
Оповещатели взрывозащищенные
-
Табло оповещения взрывозащищённое
-
Приборы приемно-контрольные и пульты управления взрывозащищенные
-
Адресные взрывозащищенные системы
-
Посты управления взрывозащищенные
-
Системы видеонаблюдения взрывозащищенные
-
Системы контроля доступа взрывозащищенные
-
Громкоговорители взрывозащищенные
-
Коробки коммутационные взрывозащищенные
-
Барьеры искрозащиты
-
Кабельные вводы взрывозащищенные
-
-
Источники вторичного электропитания
-
Расходные и монтажные материалы
-
Средства пожаротушения
-
Первичные средства пожаротушения
-
Порошковое пожаротушение
-
Водяное пожаротушение
-
Аэрозольное пожаротушение
-
Газовое пожаротушение
-
Автономные установки пожаротушения
-
Клапан сброса избыточного давления КСИД
-
Водопенное оборудование
-
Шкафы пожарные
-
Дымоудаление
-
Средства защиты и спасения
-
Знаки безопасности и плакаты
-
-
Сетевое оборудование