Количество абонентов
4
Количество подключаемых вызывных панелей /трубок
1/4 (вместо мониторов)
Количество дополнительно подключаемых мониторов
4
Номинальное сопротивление выносного резистора, кОм
0,082 (в конечном БК-4MVE)
Рекомендованный кабель
UTP cat 5e/6; RG 59/6U
Цвет
Белый
Тип изделия
Блок коммутации
Подключение
Вх.: 12-и проводное; вых.: 24-х проводное для 4-х абонентов
Крепление
На стену и DIN-рейку
Тип установки
Накладной
Материал
Пластик
Напряжение питания, В
20 - 28
Ток потребления. мА
10
Разъем
Клеммы
Диапазон рабочих температур, °С
+1…+40
Степень защиты, IP
20
Габаритные размеры, мм
75x135x35
Масса, кг
0,2
Оборудование к домофону
1 шт
- Главная
- Каталог
- Средства и системы контроля и управления доступом
- Домофоны
- Дополнительное оборудование к домофонам
- Оборудование к домофону БК-4MVE
Оборудование к домофону БК-4MVE
Артикул: 80953
2030.40 р./шт.
(с НДС)
0 р.
| Количество | Ваша цена | Экономия |
|---|---|---|
| Опт от 25 шт. | 1 945.80 р./шт. | 84.60 р. |
| Запросить КП на крупный опт |
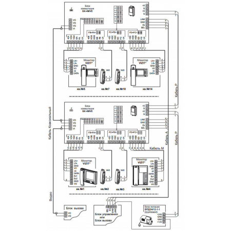
Этажный коммутатор (емкость до 4 абонентов), совмещенный с разветвителем видеосигнала и распределителем группового питания мониторов серии 400 в составе видеодомофонов многоабонентских. Распределитель питания имеет защиту от перегрузки и короткого замыкания.
Характеристики:
Производитель:
Модус-Н
Описание:
БК-4MVE - блок коммутации домофона предназначен для подключения 4-ёх абонентских мониторов или переговорных аудиоустройств к подъездной линии связи видеодомофонов VIZIT, с групповым питанием мониторов.
Данный блок коммутации может подключается как к вызывной панели, так и к блоку управления домофона (БУД).
Особенности:
- встроенный разветвитель видеосигнала;
- напряжение питания постоянного тока, В: 20 - 28;
- габаритные размеры, мм, (ШхВхГ) - 75х135х35;
- диапазон рабочих температур, °С - от +1 до +40.
Совместимые устройства:
- Модификации VIZIT-M427C: VIZIT-M427C.
Модификации БВД-306: БВД-306-2, БВД-306-4, БВД-306-6, БВД-306CP-2, БВД-306CP-4, БВД-306CP-6, БВД-306FCP-2, БВД-306FCP-4, БВД-306FCP-6.
Модификации БВД-N100: БВД-N100CP, БВД-N100RCP.
Модификации БВД-N101: БВД-N101RTCP.
Модификации БВД-SM101: БВД-SM101RCPL, БВД-SM101TCPL.
Модификации БВД-М200: БВД-М200CP.
Модификации БПД24/12: БПД24/12-1-1.
Модификации БУД-302: БУД-302М.
Модификации БУД-408: БУД-408М.
Модификации БУД-420: БУД-420М.
Техническая документация
Сертификаты
Ввиду того, что изделие может быть модифицировано, сведения, представленные на данной странице (изображение, характеристики, документация и т.п.), могут отличаться от фактических особенностей товара. За дополнительной информацией обращайтесь в техническую поддержку.
Каталог товаров
-
Охранно-пожарная сигнализация
-
Адресные системы
-
Радиоканальные системы
-
Астра-Р (ТЕКО)
-
Астра-РИ (ТЕКО)
-
Астра-РИ-М (ТЕКО)
-
Астра-Прайм (ТЕКО)
-
Астра-Zитадель (ТЕКО)
-
Ладога-РК (Риэлта)
-
С2000Р (Болид)
-
ВЕКТОР-АР (Сибирский Арсенал)
-
ВЕТТА-2020 (Сибирский Арсенал)
-
ГРАНИТ-РК (Сибирский Арсенал)
-
Риф-Ринг-1 (Альтоника)
-
Риф-Ринг-2 (Альтоника)
-
Риф-Ринг-701 (Альтоника)
-
Риф-Ринг-200 (Альтоника)
-
Lonta Optima (Альтоника)
-
Lonta-202 (Альтоника)
-
ACS (GSN)
-
-
GSM системы
-
Приборы приемно-контрольные
-
Извещатели охранные для помещений
-
Извещатели магнитоконтактные
-
Извещатели тревожной сигнализации
-
Извещатели разбития стекла акустические
-
Извещатели разбития стекла ударноконтактные
-
Извещатели движения ультразвуковые
-
Извещатели движения инфракрасные объемные
-
Извещатели движения пассивные инфракрасные поверхностные (штора)
-
Извещатели движения пассивные инфракрасные линейные (коридор)
-
Извещатели движения пассивные инфракрасные потолочные
-
Извещатели движения комбинированные
-
Извещатели совмещенные
-
Извещатели вибрационные и емкостные
-
-
Извещатели охраны периметра
-
Извещатели охраны периметра линейные ИК-активные
-
Извещатели охраны периметра линейные радиоволновые для установки на открытых участках
-
Извещатели охраны периметра ИК-пассивные
-
Извещатели охраны периметра объемные радиоволновые
-
Извещатели охраны периметра комбинированные
-
Извещатели охраны периметра проводно-волновые
-
Извещатели охраны периметра вибрационные
-
-
Извещатели пожарные
-
Извещатели дымовые 2-х проводные
-
Извещатели дымовые 4-х проводные
-
Извещатели дымовые автономные
-
Извещатели дымовые линейные
-
Извещатели дымовые аспирационные
-
Извещатели тепловые максимальные (пороговые)
-
Извещатели тепловые максимально-дифференциальные
-
Извещатели линейные тепловые пожарные
-
Извещатели пламени
-
Извещатели ручные
-
Извещатели комбинированные
-
-
Извещатели аварийные
-
Оповещатели
-
Светильники и аварийное освещение
-
Системы активной защиты
-
Распродажа
-
-
Системы охранного телевидения
-
Системы контроля и управления доступом
-
Домофоны
-
IP-домофония
-
Идентификаторы
-
Кнопки выхода
-
Считыватели
-
Кодовые панели
-
Автономные устройства контроля доступа
-
Сетевые системы контроля доступа
-
Биометрический контроль доступа
-
Системы обратной и диспетчерской связи
-
Замки
-
Электрозащелки
-
Доводчики
-
Турникеты
-
Калитки
-
Ограждения
-
Шлагбаумы
-
Автоматика для ворот
-
Досмотровое оборудование
-
-
Системы оповещения
и управление эвакуацией-
СОУЭ Тромбон
-
СОУЭ Ария (Электротехника и Автоматика)
-
СОУЭ Соната (ВИСТЛ)
-
СОУЭ С (ИП Раченков)
-
СОУЭ МЕТА
-
СОУЭ Октава (Полисервис)
-
СОУЭ Рокот (Сибирский Арсенал)
-
СОУЭ РЕЧОР (РУССБЫТ)
-
СОУЭ РЕЧОР-АТ (АНТИТЕРРОР) (РУССБЫТ)
-
СОУЭ ПКИ-Р (СпецКомИнтегРо)
-
Системы оповещения о пожаре Asenware
-
СОУЭ ROXTON
-
Звуковое оборудование RORSYS
-
СОУЭ JDM
-
СОУЭ MKV
-
СОУЭ ZVON
-
СОУЭ INTER-М
-
-
Взрывозащищенное оборудование
-
Извещатели пожарные взрывозащищенные
-
Извещатели пожарные тепловые резервуарные
-
Извещатели пожарные тепловые точечные
-
Извещатели пожарные тепловые максимально-дифференциальные
-
Извещатели пожарные дымовые
-
Извещатели пожарные комбинированные
-
Извещатели пожарные ручные взрывозащищенные
-
Извещатели пожарные пламени взрывозащищенные
-
Комплектующие к пожарным извещателям
-
-
Извещатели пожарные линейные взрывозащищенные
-
Извещатели охранные взрывозащищенные
-
Извещатели аварийные взрывозащищенные
-
Оповещатели взрывозащищенные
-
Табло оповещения взрывозащищённое
-
Приборы приемно-контрольные и пульты управления взрывозащищенные
-
Адресные взрывозащищенные системы
-
Посты управления взрывозащищенные
-
Системы видеонаблюдения взрывозащищенные
-
Системы контроля доступа взрывозащищенные
-
Громкоговорители взрывозащищенные
-
Коробки коммутационные взрывозащищенные
-
Барьеры искрозащиты
-
Кабельные вводы взрывозащищенные
-
-
Источники вторичного электропитания
-
Расходные и монтажные материалы
-
Средства пожаротушения
-
Первичные средства пожаротушения
-
Порошковое пожаротушение
-
Водяное пожаротушение
-
Аэрозольное пожаротушение
-
Газовое пожаротушение
-
Автономные установки пожаротушения
-
Клапан сброса избыточного давления КСИД
-
Водопенное оборудование
-
Шкафы пожарные
-
Дымоудаление
-
Средства защиты и спасения
-
Знаки безопасности и плакаты
-
-
Сетевое оборудование